ARCHITECT DESIGN
เราให้บริการงานออกแบบอาคาร โดยสถาปนิก ที่มีใบประกอบวิชาชีพ
ให้บริการ ออกแบบอาคาร ขนาดเล็ก ถึงขนาดกลาง
ให้บริการ ออกแบบอาคาร ขนาดเล็ก ถึงขนาดกลาง
We provide architectural design services by professional architects license.
Our service available from small to medium size building.
3D perspective
เรานำเสนอภาพสามมิติ ที่ใก้ลเคียงกับความจริง เพื่อให้ลูกค้าเข้าใจ ภาพรวม
ของงานออกแบบอาคาร เพื่อเตรียมพร้อมในการเขียนแบบก่อสร้างต่อไป
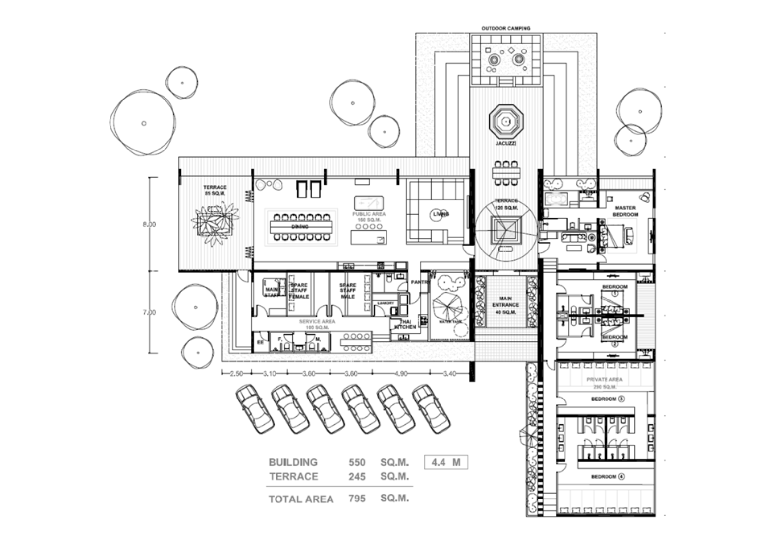
Construction Drawing
ขั้นตอนสุดท้ายก่อนการก่อสร้าง คืองานเขียนแบบ เราตั้งใจลงทุกรายละเอียด ทั้งสเปควัสดุ และตรวจสอบรายละเอียด เพื่อให้งานก่อสร้างราบรื่น และตรงตามความต้องการของลูกค้าให้ได้มากที่สุด





